Продаём шикарную 3-к Квартиру по адресу проспект Победы, д, Казань за 6 600 000 р.
Продажа / Квартиры, Казань, Победы проспект, 6 600 000 р.












Казань, Победы проспект, д. 34 | |
Цена | 6 600 000 р. |
---|---|
Этаж | 2 из 9 |
Кол.во комнат | 3 |
Отопление | Центральное |
Материал стен | Блоки (газобетон, пенобетон, КБ |
Площадь общая | 69 |
Площадь жилая | 38 |
Площадь кухни | 7 |
Плита | газ |
Мебель | |
Добавлено | 2021-03-12 13:12 |
Просмотров | 613 |
![]() ![]() ![]() | |
|
* К сожалению, автор этого объявления не подтверждал его актуальность уже более года. Поэтому перед принятием решения обязательно свяжитесь с ним по телефону.
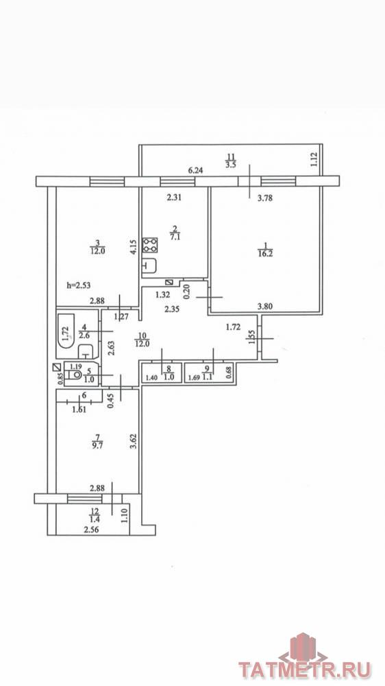
Продаём шикарную 3-к Квартиру по адресу проспект Победы, д.34
+ комнаты изолированные
+ планировка - распашонка
+ квартира очень теплая
+ есть 2 балкона
+ с/у раздельный
+ ремонт свежий, делался 1 год назад
+ площадь комнат 12, 10 и 16кв.м.
+ в коридоре за зеркалом 2 Большие гардеробные
+ дверь входная в Квартиру имеет систему автоблокировки при поднятии Ручки вверх. Дверь снаружи автоматически не открывается
+ детская городская Поликлиника #10 на ул.Сыртлановой через дорогу
+ дом относится ко взрослой городской поликлинике #20
+ в соседнем доме есть отделение Сбербанка, банк Втб находится в доме напротив
+ развитая инфраструктура: аптеки, магазины, почтовое отделение все в шаговой доступности
+ во дворе детский садик Сказка #25 и Радуга #43
+ также во дворе гимназия #19, через дорога также расположены гимназия #16 и русско-Татарская СОШ #150
Безопасность сделки обеспечена стандартами работы Гильдии риэлторов Республики Татарстан.
+ ПРИМЕМ в оплату вторичное жилье
+ ПОМОЖЕМ оформить ипотеку по самой выгодной ставке в ЛЮБОМ банке от 4,5%
+ ЗНАЕМ все скидки по ипотеке от банков партнеров
+ Юридическое сопровождение любой сделки
+ ПРОВЕРЯЕМ все объекты на юридическую чистоту
+ от КОНСУЛЬТАЦИИ до ВЫХОДА на СДЕЛКУ
+ деятельность компании ЗАСТРАХОВАНА
Продаём шикарную 3-к Квартиру по адресу проспект Победы, д.34
+ комнаты изолированные
+ планировка - распашонка
+ квартира очень теплая
+ есть 2 балкона
+ с/у раздельный
+ ремонт свежий, делался 1 год назад
+ площадь комнат 12, 10 и 16кв.м.
+ в коридоре за зеркалом 2 Большие гардеробные
+ дверь входная в Квартиру имеет систему автоблокировки при поднятии Ручки вверх. Дверь снаружи автоматически не открывается
+ детская городская Поликлиника #10 на ул.Сыртлановой через дорогу
+ дом относится ко взрослой городской поликлинике #20
+ в соседнем доме есть отделение Сбербанка, банк Втб находится в доме напротив
+ развитая инфраструктура: аптеки, магазины, почтовое отделение все в шаговой доступности
+ во дворе детский садик Сказка #25 и Радуга #43
+ также во дворе гимназия #19, через дорога также расположены гимназия #16 и русско-Татарская СОШ #150
Безопасность сделки обеспечена стандартами работы Гильдии риэлторов Республики Татарстан.
+ ПРИМЕМ в оплату вторичное жилье
+ ПОМОЖЕМ оформить ипотеку по самой выгодной ставке в ЛЮБОМ банке от 4,5%
+ ЗНАЕМ все скидки по ипотеке от банков партнеров
+ Юридическое сопровождение любой сделки
+ ПРОВЕРЯЕМ все объекты на юридическую чистоту
+ от КОНСУЛЬТАЦИИ до ВЫХОДА на СДЕЛКУ
+ деятельность компании ЗАСТРАХОВАНА
Все объявления г. Казань
Все Квартиры в г. Казань
Все объявления на этой улице
Все Квартиры на этой улице
Узнать больше про Казань
Все Квартиры в г. Казань
Все объявления на этой улице
Все Квартиры на этой улице
Узнать больше про Казань